As Built Surveys & Drawings
Exact Solutions provides detailed as-built surveys and drawings that accurately capture the true condition of a building or site.
Whether a project has just been completed, a renovation is being planned, or documentation is required for compliance, as built plans provide a precise record of what has actually been constructed. These drawings reflect real-world conditions rather than original design intent, ensuring that property owners, designers and consultants can rely on accurate information when making decisions.
With offices based in both Auckland and Christchurch, we deliver professional as built documentation for residential, commercial and industrial properties. Our drawings are prepared to architectural standards and provide a clear representation of building layouts, services and structural elements at the time of survey.
What are As Built Drawings?
This documentation provides an accurate reference for:
Future renovations or fit-outs
Building maintenance and management
Council approvals and compliance
Engineering and design work
Property documentation and records
In simple terms, the as built meaning refers to a drawing that shows a building exactly as it exists today.
As built drawings are updated plans that record the final condition of a building once construction or alterations have been completed.
During construction, changes are often made to the original design plans. An as built survey documents these changes so the final drawings reflect what has actually been installed on site.
Accurate As Built Documentation
Our as-built survey services capture the full structure and layout of a building, providing detailed drawings that can be relied upon by architects, engineers, developers and property owners.
All measurements are taken directly on site to ensure that every drawing accurately represents the building at the time of survey.
Typical as built documentation may include:
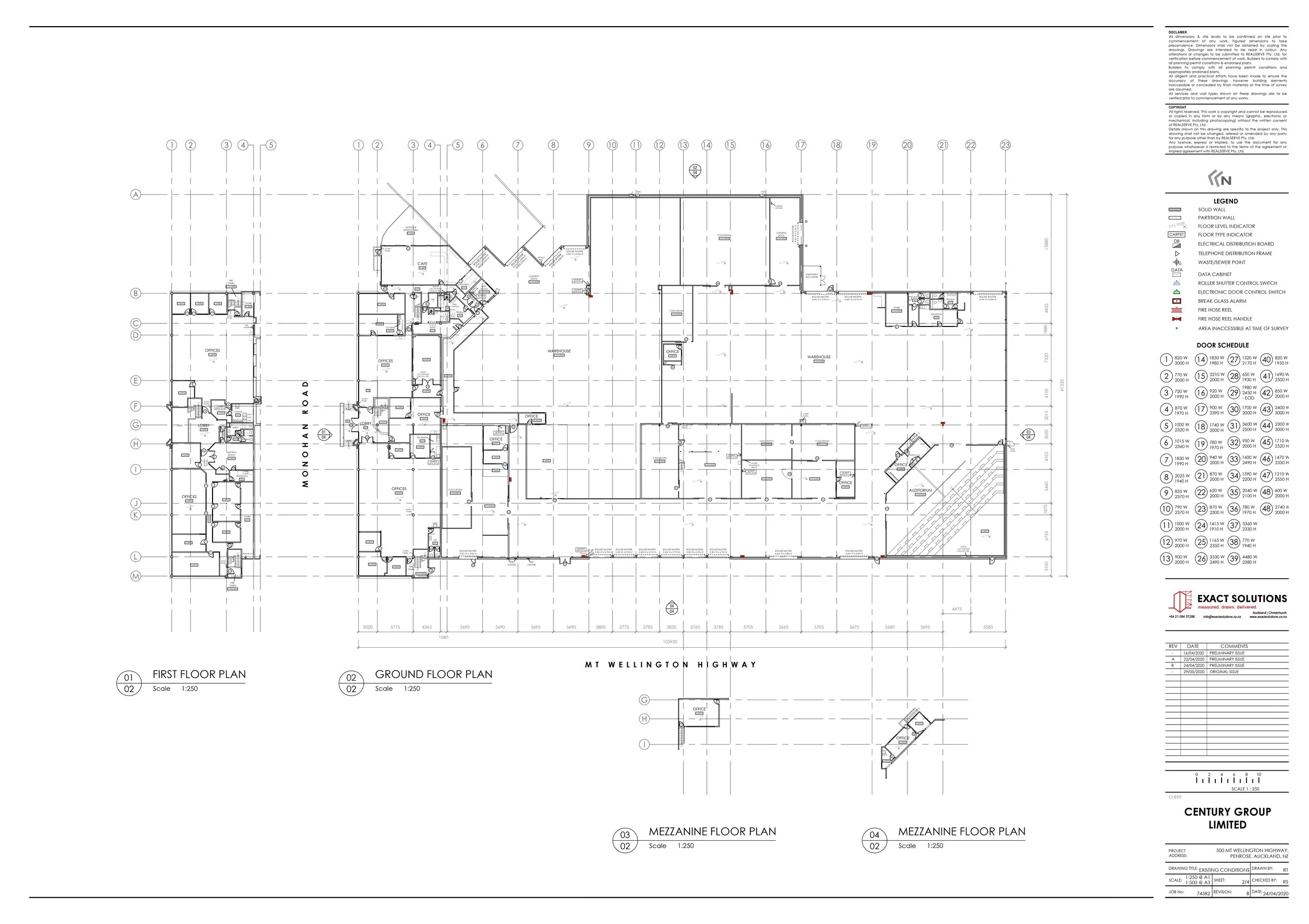
Scaled floor plans showing walls, windows and doors
Structural elements such as columns and bulkheads
Internal fit-out partitions and fixtures
Mechanical and electrical services visible on site
Ceiling heights and floor levels
Building materials and glazing
These as built plans are delivered as clear digital drawings that can be used for design, compliance or project planning.
Types of As Built Drawings
Exact Solutions provides several types of as-built drawings depending on the requirements of the project.
-
As built floor plans provide a detailed representation of the building layout, capturing both the base building structure and internal fit-outs.
These drawings include the precise location of walls, windows, doors, columns and fixtures, along with key building features such as floor levels and clearance heights. By documenting the building in detail, as built floor plans make it easier to assess how a space can be modified or redeveloped.
For designers and consultants, these plans provide a reliable foundation for future design work without the need for repeated site visits.
-
Reflected ceiling plans (RCPs) show the layout and features of a building’s ceiling when viewed from below.
Our reflected ceiling plans capture ceiling finishes, ceiling grids, bulkheads and ceiling heights, along with visible services such as lighting, mechanical systems and ducting.
These drawings are particularly valuable when planning tenancy changes, lighting upgrades or mechanical alterations. By accurately documenting existing services and ceiling structures, reflected ceiling plans help consultants and engineers plan modifications with confidence.
We can also provide Archicad reflected ceiling plan outputs, allowing the drawings to integrate seamlessly with digital design workflows.
-
As built elevations and sections provide additional detail about a building’s vertical structure and external features.
These drawings can include roof levels, bulkhead features and ground-level topography, along with key construction elements such as materials, glazing and drainage.
Elevation drawings are often required for council documentation or development planning, as they provide a clear representation of how a building sits within its environment.
As Built Surveys for Different Property Types
Our as-built surveys are used across a wide range of property types throughout New Zealand.
Commercial Buildings
For commercial properties such as offices and business premises, as built drawings provide an accurate record of internal layouts, services and building features. These drawings are often used for tenancy planning, renovations or building management.
Industrial Buildings
Industrial properties such as warehouses and distribution centres require detailed documentation of structural layouts and operational spaces. As built surveys capture building dimensions, clearance heights and service installations to support future design or engineering work.
Residential Properties
As built documentation is also commonly prepared for residential buildings, including stand-alone houses, townhouses and apartment developments. These drawings can assist with renovation planning, council documentation or project handovers.
By capturing the exact condition of a building at the time of survey, as built plans provide reliable information for any type of property.
Our As Built Survey Process
Exact Solutions follows a structured process to ensure each as built drawing is accurate and professionally prepared.
-
Our team conducts a detailed on-site survey to measure the building and record structural features, services and fixtures.
-
Survey data is converted into precise digital drawings using professional drafting software.
-
Each as-built plan is reviewed to ensure that it accurately reflects the conditions observed during the survey.
-
Completed drawings are provided in formats suitable for design teams, property documentation and council submissions.
Why Accurate As Built Plans Matter
Accurate as built documentation provides clarity and confidence when working with an existing building.
Without reliable drawings, designers and consultants often need to repeatedly revisit a site to confirm measurements or building details. A professional as built survey removes this uncertainty by providing a complete and accurate representation of the building layout.
This allows architects, engineers and property owners to make informed decisions and plan future work more efficiently.
As Built Surveys across New Zealand
Exact Solutions provides professional as-built surveys and drawings across New Zealand, supporting residential, commercial and industrial projects.
Our experienced surveying team delivers accurate documentation that can be used for design development, renovation planning and council compliance.
Whether you require a full as built survey for a completed project or detailed documentation for an existing building, we can provide drawings that accurately reflect the conditions on site.
Request an As Built Survey
If you require accurate as-built plans, drawings or documentation, Exact Solutions can help - fill out the request form below.

